多くの同じより、違いの価値をアートを通じてサポートします
Top
コンセプト
事業内容
海外設計業務
工務店支援
外構業者支援
アーティスト支援
お寺・墓地運営者様支援
設計実績
海外設計
国内設計
霊園関係設計
Blog
会社概要
プロフィール
お問い合わせ
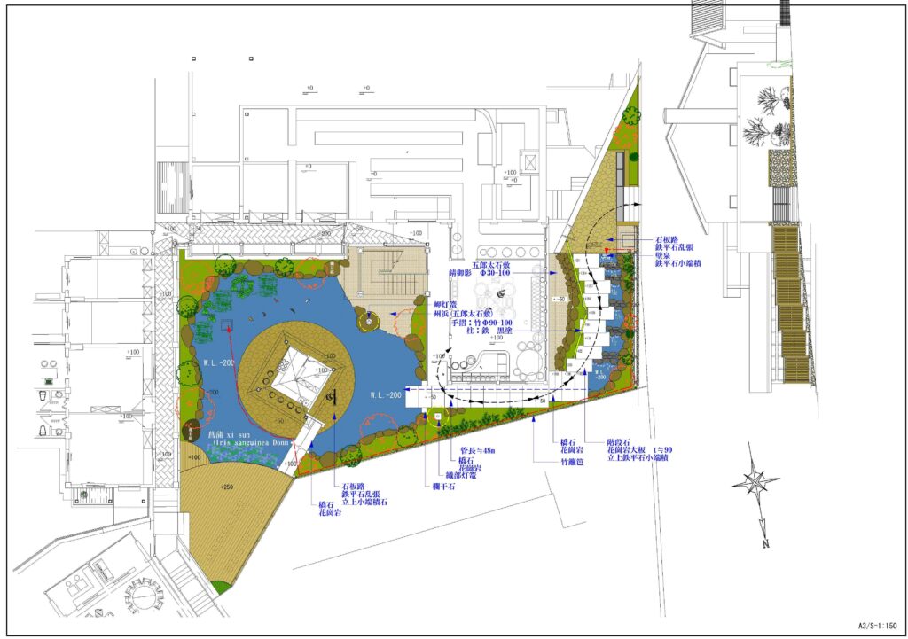
中国江西省 料理店の庭
Category
海外設計
中国江西省
庐山风景区云起山房餐饮酒店
庭全体を設計させていただきました
海外施工事例
国内施工事例
霊園関係施工事例